€ 115.000
MORTARA FRAZ.: SOLUZIONE INDIPENDENTE SU QUATTRO LATI

Rif: C286
  • 25 Foto
  • 2 Planimetrie
  • Mappa

Descrizione

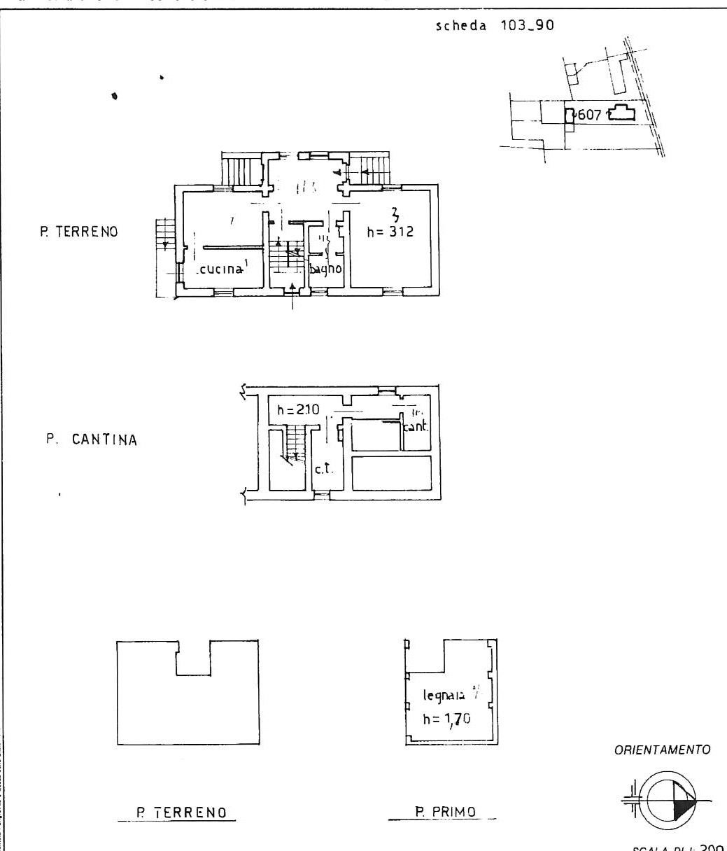
MORTARA FRAZIONE: Proponiamo in vendita soluzione indipendente su quattro lati ( con possibilità di bifamiliare ), disposta su tre livelli e composta al piano terra da: ingresso nel salotto, cucina abitabile, sala da pranzo, ampio soggiorno e bagno con doccia e vasca; ampio disimpegno, camera matrimoniale ( possibilità di soggiorno/ cucina ), due camere da letto, terrazzo di 10 mq e bagno con doccia e vasca al piano primo. Totalmente cantinata al piano seminterrato. L'immobile dispone di due ingressi indipendenti, giardino di 200 mq, vari posti auto scoperti e autorimessa. FINITURE: serramenti in legno e doppio vetro, avvolgibili, pavimenti in monocottura ( piano terra ), serramenti in legno e vetro singolo, avvolgibili e pavimenti in graniglia ( piano primo ). DA PERSONALIZZARE!! Per maggiori informazioni contattaci al numero Agenzia Immobiliare Tecnogest - Corso G. Josti 27, Mortara (PV)-Piazza Libertà 30, Robbio (PV) VUOI VENDERE CASA? AFFIDATI A NOI! Cosa ti offriamo? -Pubblicità su tutti i portali italiani e su giornali specializzati. RIVOLGITI A NOI PER UNA VALUTAZIONE GRATUITA DEL TUO IMMOBILE! NOTE: La presente scheda non costituisce elemento contrattuale, pertanto le informazioni riportate quali descrizione, planimetrie, misure e posizione sono da ritenersi del tutto indicative. Non potranno quindi essere utilizzate come parte integrante in un eventuale contratto di vendita della proprietà. La presente scheda non vincola in alcun modo la società. RIF. ANNUNCIO C286

Richiedi maggiori informazioni

Autorizzazione al trattamento dei dati personali+
Dichiaro di aver letto l'informativa sulla privacy ed accetto le condizioni d'utilizzo del servizio.
Riempi il campo con il codice riportato nell'immagine*
Codice Captcha

Dettaglio immobile

Contratto Vendita
Rif C286
Prezzo € 115.000
Provincia Pavia
Comune Mortara
Indirizzo Via Milano
Superficie 170 mq
Vani 6
Camere 3
Bagni 2
Classe energetica G (DL 90/2013)
EPgl,nren 437,42 kwh/m2 anno
Riscaldamento autonomo
Condizioni da ristrutturare
Anno di costruzione 1967
Ascensore no
Garage singolo si
Cantina si
Parcheggio si
Giardino
Cucina abitabile
Terrazza si

Consistenze

Descrizione Superficie Sup. comm.
Principali
Immobile - piano terra 170 Mq 170 Mqc
Totale 170 Mqc

Contattaci

Autorizzazione al trattamento dei dati personali+
Dichiaro di aver letto l'informativa sulla privacy ed accetto le condizioni d'utilizzo del servizio.
Riempi il campo con il codice riportato nell'immagine*
Codice Captcha

Tecnogest - Ag Immobiliare Tecnogest

Corso Josti, 27
27036 MORTARA (PV)
C.F.: 02811630181
P.IVA: 02811630181
3929352603
Condividi Linkedin Whatsapp Stampa
Stampa