€ 235.000
MORTARA CITTA': AMPIA VILLA DI TESTA CON GIARDINO

Rif: C287
  • 46 Foto
  • 2 Planimetrie
  • Mappa

Descrizione

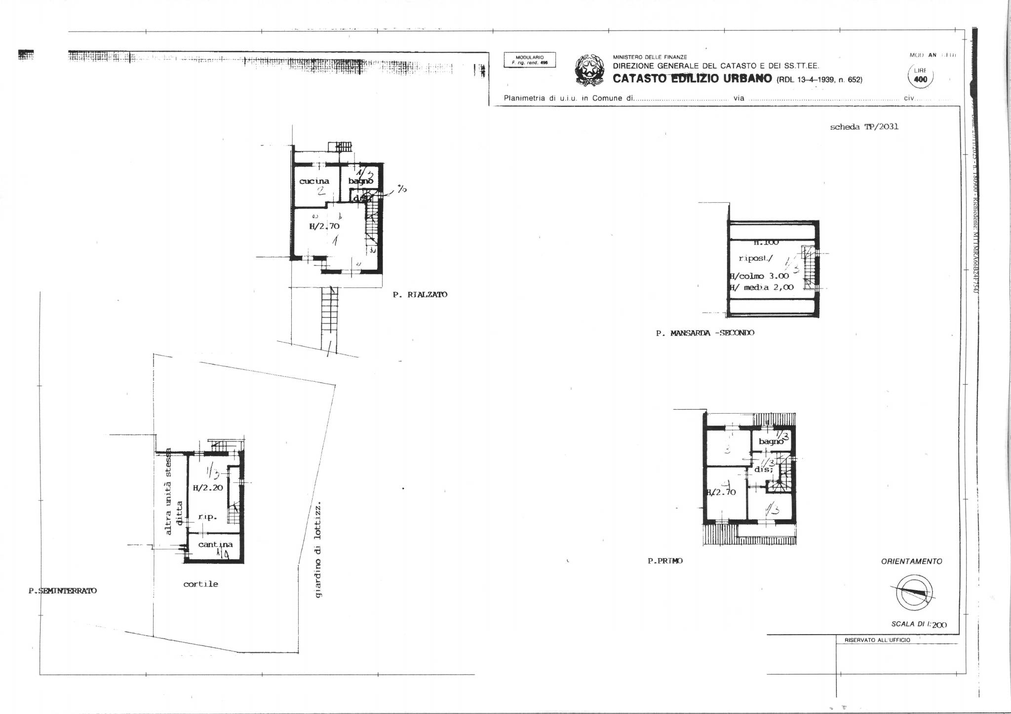
MORTARA CITTA': In zona residenziale proponiamo in ESCLUSIVA ampia villa di testa, disposta su quattro livelli, composta al piano rialzato da: ingresso nel soggiorno servito da balcone, cucina abitabile con balcone e bagno con doccia; disimpegno zona notte, camera matrimoniale, due camere da letto servite da balcone e bagno con vasca al piano primo. Ampio locale con velux e tetto a vista al piano mansardato; locale ad uso taverna e cantina al piano seminterrato. La proprietà include inoltre un posto auto scoperto, box doppio e giardino sui tre lati di 250 mq. Ristrutturata con bonus 110 nel 2022!! OTTIMO STATO! FINITURE: serramenti in PVC e doppio vetro, zanzariere, persiane in alluminio, pavimenti in monocottura, pannelli solari con batteria di accumulo, colonnina per ricarica auto, tende da sole, impianto di antifurto , telecamere, impianto di riscaldamento a zone e caldaia con pompa di calore ibrida. Per maggiori informazioni contattaci al numero Agenzia Immobiliare Tecnogest - Corso G. Josti 27, Mortara (PV)-Piazza Libertà 30, Robbio (PV) VUOI VENDERE CASA? AFFIDATI A NOI! Cosa ti offriamo? -Pubblicità su tutti i portali italiani e su giornali specializzati. RIVOLGITI A NOI PER UNA VALUTAZIONE GRATUITA DEL TUO IMMOBILE! NOTE: La presente scheda non costituisce elemento contrattuale, pertanto le informazioni riportate quali descrizione, planimetrie, misure e posizione sono da ritenersi del tutto indicative. Non potranno quindi essere utilizzate come parte integrante in un eventuale contratto di vendita della proprietà. La presente scheda non vincola in alcun modo la società. RIF. ANNUNCIO C287

Richiedi maggiori informazioni

Autorizzazione al trattamento dei dati personali+
Dichiaro di aver letto l'informativa sulla privacy ed accetto le condizioni d'utilizzo del servizio.
Riempi il campo con il codice riportato nell'immagine*
Codice Captcha

Dettaglio immobile

Contratto Vendita
Rif C287
Prezzo € 235.000
Provincia Pavia
Comune Mortara
Indirizzo Strada Vecchia di Galliate
Superficie 205 mq
Vani 5
Camere 3
Bagni 2
Classe energetica A1 (DL 90/2013)
EPgl,nren 87,45 kwh/m2 anno
Riscaldamento autonomo
Condizioni ottime condizioni
Anno di costruzione 1995
Ascensore no
Garage singolo si
Cantina si
Parcheggio si
Giardino
Cucina abitabile
Taverna si
Balcone si
Mansarda si

Consistenze

Descrizione Superficie Sup. comm.
Principali
Immobile - piano rialzato 205 Mq 205 Mqc
Totale 205 Mqc

Contattaci

Autorizzazione al trattamento dei dati personali+
Dichiaro di aver letto l'informativa sulla privacy ed accetto le condizioni d'utilizzo del servizio.
Riempi il campo con il codice riportato nell'immagine*
Codice Captcha

Tecnogest - Ag Immobiliare Tecnogest

Corso Josti, 27
27036 MORTARA (PV)
C.F.: 02811630181
P.IVA: 02811630181
3929352603
Condividi Linkedin Whatsapp Stampa
Stampa