€ 100.000
MORTARA VIC.: SOLUZIONE INDIPENDENTE SU TRE LATI CON CORTILE

Rif: R1989
  • 40 Foto
  • 1 Planimetrie
  • Mappa

Descrizione

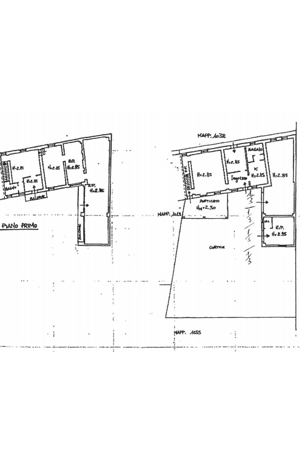
MORTARA VIC.: Proponiamo in vendita ampia soluzione indipendente su tre lati, disposta su due livelli, composta al piano terra da: ingresso nel piccolo soggiorno, cucina abitabile, bagno con doccia, ampio salone, camera matrimoniale e ripostiglio nel sottoscala; ampio soggiorno, camera da letto singola, bagno con doccia, camera da letto e spazio al rustico con possibilità di trasformarlo in abitazione. Possibilità di trasformare l'immobile in soluzione bifamiliare. La proprietà include inoltre un ampio portico, una depandance di un locale con servizi, ampio box con cantina, vari posti auto e cortile di 200 mq. DA VISIONARE!! FINITURE: serramenti in alluminio e doppio vetro, zanzariere, inferriate, persiane in alluminio, pavimenti in monocottura e camino. Per maggiori informazioni contattaci al numero Agenzia Immobiliare Tecnogest - Corso G. Josti 27, Mortara (PV)-Piazza Libertà 30, Robbio (PV) VUOI VENDERE CASA? AFFIDATI A NOI! Cosa ti offriamo? -Pubblicità su tutti i portali italiani e su giornali specializzati. RIVOLGITI A NOI PER UNA VALUTAZIONE GRATUITA DEL TUO IMMOBILE! NOTE: La presente scheda non costituisce elemento contrattuale, pertanto le informazioni riportate quali descrizione, planimetrie, misure e posizione sono da ritenersi del tutto indicative. Non potranno quindi essere utilizzate come parte integrante in un eventuale contratto di vendita della proprietà. La presente scheda non vincola in alcun modo la società. RIF. ANNUNCIO R1989

Richiedi maggiori informazioni

Autorizzazione al trattamento dei dati personali+
Dichiaro di aver letto l'informativa sulla privacy ed accetto le condizioni d'utilizzo del servizio.
Riempi il campo con il codice riportato nell'immagine*
Codice Captcha

Dettaglio immobile

Contratto Vendita
Rif R1989
Prezzo € 100.000
Provincia Pavia
Comune Mortara
Indirizzo Corso Giovanni Josti
Superficie 260 mq
Vani 6
Camere 3
Bagni 2
Classe energetica G (DL 90/2013)
EPgl,nren 264,2 kwh/m2 anno
Riscaldamento autonomo
Condizioni abitabile
Anno di costruzione 1967
Ascensore no
Garage singolo si
Cantina si
Parcheggio si
Giardino
Cucina abitabile
Balcone si

Consistenze

Descrizione Superficie Sup. comm.
Principali
Immobile - piano terra 260 Mq 260 Mqc
Totale 260 Mqc

Contattaci

Autorizzazione al trattamento dei dati personali+
Dichiaro di aver letto l'informativa sulla privacy ed accetto le condizioni d'utilizzo del servizio.
Riempi il campo con il codice riportato nell'immagine*
Codice Captcha

Tecnogest - Ag Immobiliare Tecnogest

Corso Josti, 27
27036 MORTARA (PV)
C.F.: 02811630181
P.IVA: 02811630181
3929352603
Condividi Linkedin Whatsapp Stampa
Stampa