€ 180.000 Villa in vendita a Novara Lumellogno - Pagliate
Rif: R1983
- 45 Foto
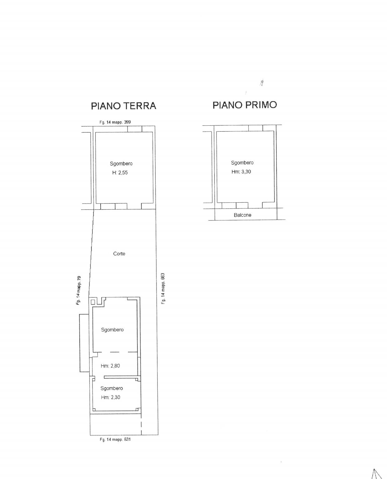
- 3 Planimetrie
- Mappa
Descrizione
NOVARA 18 KM: A CIRCA 20 MINUTI DA NOVARA, in paese ben servito, proponiamo in vendita ottima soluzione indipendente completamente ristrutturata a nuovo nell'anno 2006 ed il tutto terminato nel 2008, disposta su tre livelli, così composta: al piano terra ingresso nell'ampio soggiorno con termocamino, cucina abitabile a vista, disimpegno, bagno con doccia e ripostiglio; tramite scala in marmo si accede al piano superiore con disimpegno zona notte, ampio bagno con vasca, due camere matrimoniali di cui una con cabina armadio ed ampio balcone. L'abitazione è dotata anche di piano mansardato con locale unico uso camera da letto con terrazzino e locale sottotetto uso ripostiglio.Completano l'immobile vari locali accessori, ampio box riscaldato e pavimentato con bagno uso lavanderia e ripostiglio soppalcato, basculante elettrica.
All'interno dell'area cortiliva è collocata una seconda abitazione con rustico ed orto, acquistabile a Eu. 40.000.
L'abitazione principale è dotata di vespaio areato tramite igloo ed anche di pozzo per irrigazione esterna. FINITURE DI PREGIO! Serramenti IN PVC DOPPIO VETRO E PERSIANE IN ALLUMINIO, pavimenti in gres e parquet. DA VEDERE!
Per maggiori informazioni contattaci al numero Agenzia Immobiliare Tecnogest - Corso G. Josti 27, Mortara (PV)-Piazza Libertà 30, Robbio (PV) VUOI VENDERE CASA? AFFIDATI A NOI! Cosa ti offriamo? -Pubblicità su tutti i portali italiani e su giornali specializzati. RIVOLGITI A NOI PER UNA VALUTAZIONE GRATUITA DEL TUO IMMOBILE! NOTE: La presente scheda non costituisce elemento contrattuale, pertanto le informazioni riportate quali descrizione, planimetrie, misure e posizione sono da ritenersi del tutto indicative. Non potranno quindi essere utilizzate come parte integrante in un eventuale contratto di vendita della proprietà. La presente scheda non vincola in alcun modo la società. RIF. ANNUNCIO R1983.






